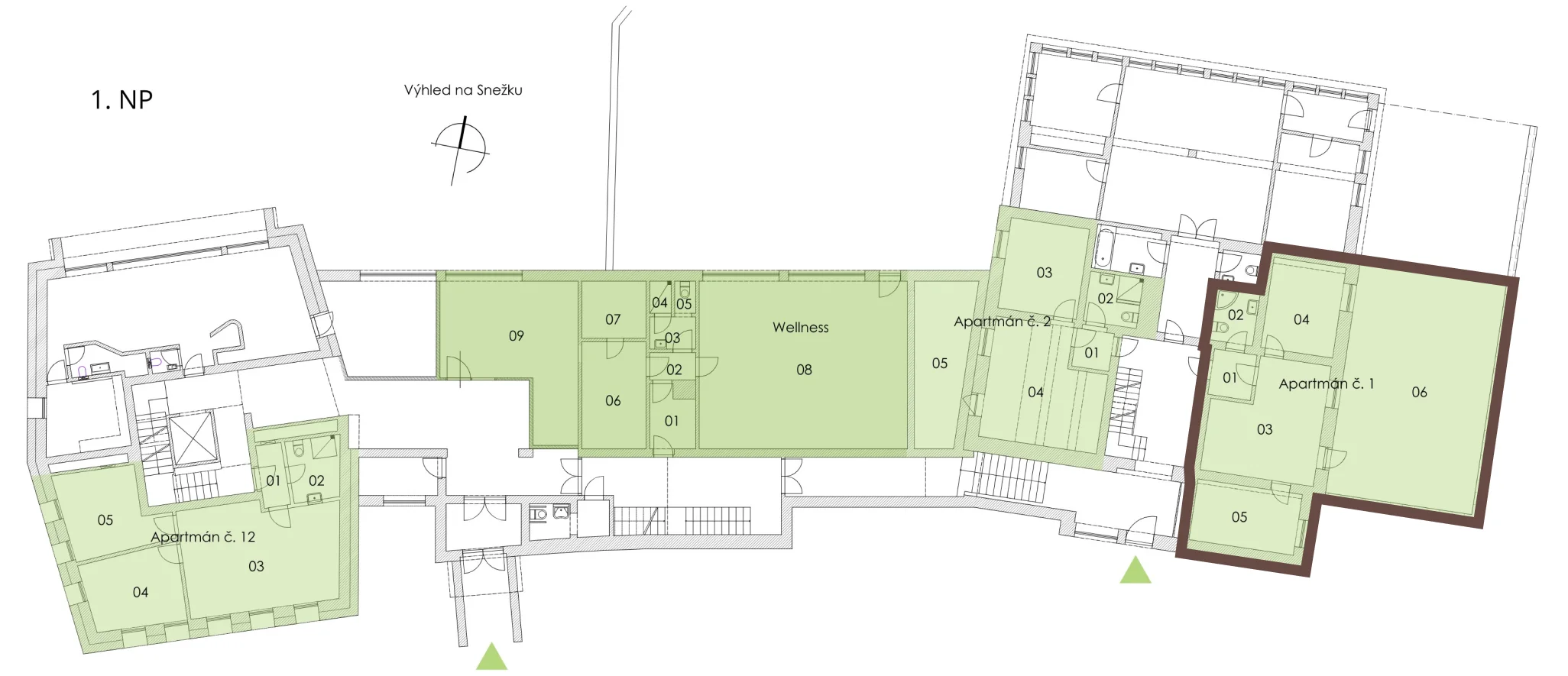
1. NP Apartmán č.1 01 Předsíň 3,00 m² 02 Koupelna + WC 4,20 m² 03 Obývací pokoj +KK 22,70m² 04 Ložnice 11,80m² 05 Ložnice 13,10m² Užitná plocha 54,80m² Podlahová plocha 56,01m² 06 Terasa 60,20m² *uvedené rozmery jsou pouze orientační 12.900.000,- Kč (možnost odpočtu DPH) Mám zájem Výhled na Sněžku Galerie Umístění apartmánu Mám zájem o více informací JménoPříjmeníE-mailová adresa *Telefonní čísloVaše zpráva0 / 180Souhlasím se zpracováním osobních údajůODESLAT